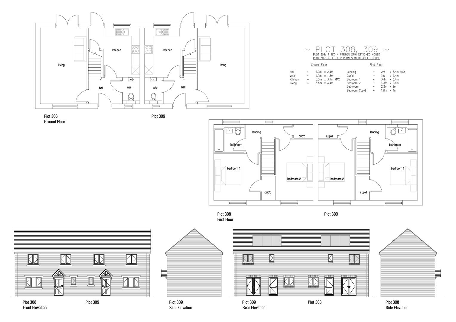
2 Bed Semi-detached house For Sale

Plot 308 Curtis Fields, 35 Blossom Grove, Weymouth, DT4 0FS
£287,500

To discuss this property call our Weymouth Office

01305 776666

or Book a viewing
SAVE TO SHORTLIST REMOVE FROM SHORTLIST

Market your property
with Hull Gregson Hull Estate Agents

Book a market appraisal for your property today.

PROPERTY SEARCH

Show Sold STC
Show Let Agreed