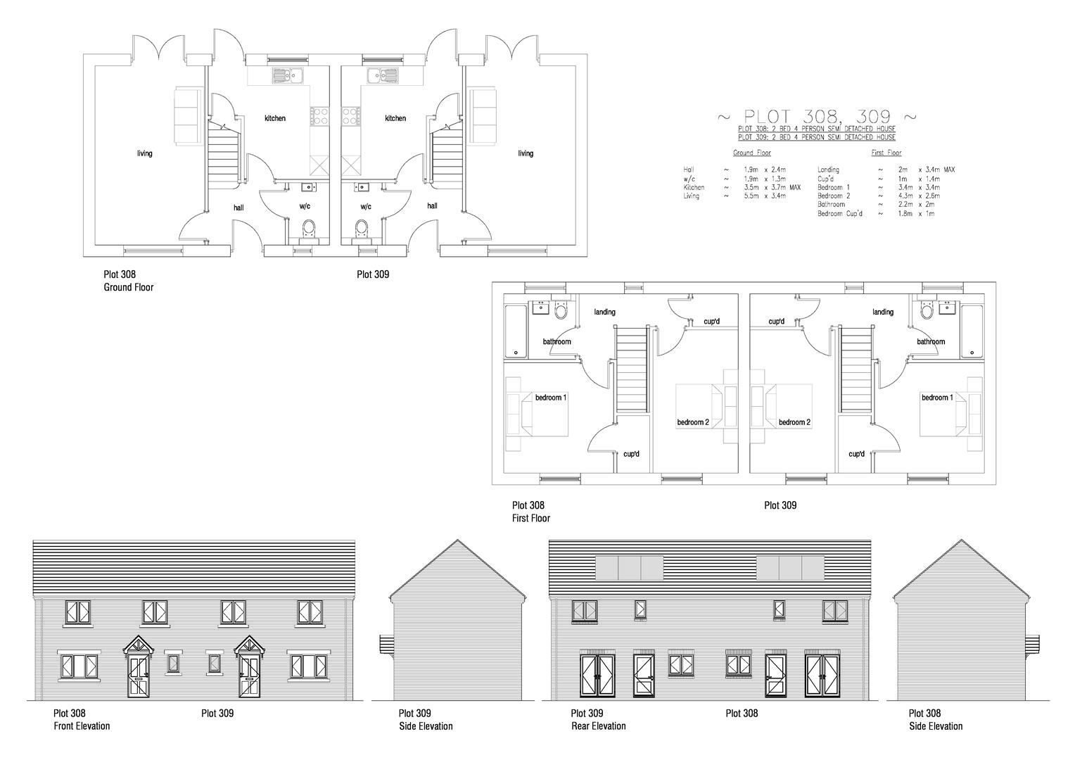
CURTIS FIELDS. Plot 308 . The property is a semi detached Snowdrop house type comprising of a Two double bedroom house with a south facing rear garden and two tandem parking spaces in front. Internally there is an ample lounge with French Doors on to a full width patio and a contemporary kitchen fitted with kitchen supplied by Howdens with built in appliances including AEG oven, AEG touch control induction hob, integrated dishwasher and a cooker hood. on the first floor are two double bedrooms plus a family bathroom, 3 D VIRTUAL TOUR AVAILABLE. Located on Curtis Fields a sought after development situated approximately two miles from Weymouth Town Centre Harbourside and Esplanade. Properties come with a 10 year NHBC warranty, photo voltaic roof panels, gas central heating, upvc double glazed windows, and LVT flooring to the ground floor included supplied by Top Mark in Weymouth. Plot 308 is almost ready for occupation. N.B. There is a site service charge of £295 per annum. N.B. photos used are of a similar property
Entrance Hall (1.90 x 2.40)
Cloakroom (1.90 x 1.30)
Fitted with two piece suite comprising WC with concealed cistern, Wash hand basin set in cabinet
Lounge (5.50 x 3.40)
Double aspect room with French Doors on to south facing full width of house patio
Kitchen Breakfast Room (3.70 x 3.50)
Fitted with contemporary kitchen units supplied by Howdens, Appliances include AEG electric Oven, AEG touch Control Induction Hob, A Cooker Hood and an integrated Dishwasher, there is space for a fridge freezer and washing machine. Door to under stairs storage cupboard and door to rear garden
Landing
Cupboard
Bedroom 1 (3.40 x 3.40)
Built in cupboard
Bedroom 2 (4.30 x 2.60)
Bathroom (2.20 x 2.00)
Fitted with three piece suite comprising Panel bath with shower and screen above, WC with concealed cistern, Wash hand basin set in cabinet, towel radiator
Outside
Garden to the front. Enclosed South facing Garden to rear, which has a full width patio with the remainder turfed, Outside Lighting, Power Points & Water Tap. Side pedestrian access and further garden area.
Parking
Two tandem parking spaces in front
Construction
The property is traditionally built with cavity walls with a brick exterior under a pitched roof.
The properties are built to comply with modern building regulations with mobility access
Service Charge
Curtis Fields Management company looks after the communal areas of the site, there is an annual service charge to cover this of £295
Council Tax
To be assessed
Covenants
A list of the Curtis fields Covenants is available on request
Photo Voltaic Roof Panels
There are Photo Voltaic panels to the roof which will belong to the property
Utility Supplies
Mains gas, electricity, water and drainage connected, Water supply is metered
Phone and Broadband signal strength and coverage
Mobile phone signals are strong for Vodafone, 3 & O2 average for EE, Internet and broadband not yet connected so not yet assessed
Flood Risk
No Low Risk of flooding from rivers or sea Medium Risk from surface water
Legal Disclaimer
These particulars, whilst believed to be accurate are set out as a general outline only for guidance and do not constitute any part of an offer or contract. Intending purchasers should not rely on them as statements of
representation of fact, but must satisfy themselves by inspection or otherwise as to their accuracy. All measurements are approximate. Any details including (but not limited to): lease details, service charges, ground rents & covenant information are provided by the vendor and you should consult with your legal advisor/ satisfy yourself before proceeding. No person in this firms employment has the authority to make or give any representation or warranty in respect of the property.