Markham Fields. Plot 448. The property is a IRIS house type example 3D Tour & TikTok are available (plots may vary) . Comprising of a Two double bedroom terraced house with a larger sized South Facing rear garden and two side by side parking spaces close by. Internally there is a lounge with French Doors opening onto a full width patio and larger sized SOUTH FACING rear garden, a contemporary kitchen with modern fitted kitchen supplied by Kitchen Craft with built in appliances including double oven, 4 ring gas hob and integrated dish washer plus. On the first floor are two bedrooms plus a family bathroom. Located on Markham Fields a small but separate part of the Curtis Fields with no road access to the rest of the development. situated just within a mile from Weymouth Town Centre Harbourside and Esplanade (plots may vary). All properties come with a 10 year NHBC warranty, gas central heating, UPVC double glazed windows, and LVT flooring to the ground floor included supplied by Top Mark in Weymouth. Plot 448 is scheduled to be ready July / August 2025. N.B. There is a site service charge of £295 per annum. N.B. photos shown are of a similar property
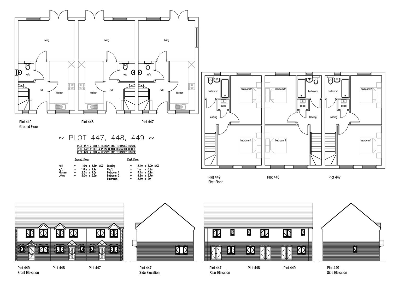
Entrance Hall
Cloakroom (1.90 x 1.30)
Wash hand basin set in to cabinet, WC with concealed cistern
Lounge (5.50 x 3.40)
French doors to south Facing patio and rear garden
Kitchen (4.30 x 2.20)
Kitchen supplied can fitted by Kitchen Craft (choices available if reserved early)
Contemporary range of kitchen units with appliances including 4 ring gas hob, cooker hood, double oven, and dish washer, + Plumbing for washing machine and space for Fridge freezer
Landing
Airing Cupboard housing gas boiler
Bedroom 1 (3.40 x 3.40)
Bedroom 2 (4.30 x 2.80)
Bathroom (2.20 x 2.00)
White suite with panel bath with shower and screen above, wash hand basin set in to cabinet, wc with concealed cistern, towel radiator
Outside
Small garden to front plus South facing split level rear garden with patio across the house and the remainder to turf and with fenced surround, there will be outside lighting. a water tap and power points
Parking
Two side by side parking spaces close by
Construction
The property is traditionally built with cavity walls with a brick & render elevations under a pitched roof.
The properties are built to comply with modern building regulations with mobility access
Service Charge
Site service service charge of £295 managed by Curtis Fields Management Company
Council Tax
To be assessed
Covenants
A list of the Curtis Fields Covenants is available on request
Utility Supplies
Mains gas, electricity, water and drainage connected, Water supply is metered
Phone and Broadband signal strength and coverage
Mobile phone signals are strong, Internet and broadband not yet connected so not yet assessed
Flood Risk
Awaiting assessment
Legal Disclaimer
These particulars, whilst believed to be accurate are set out as a general outline only for guidance and do not constitute any part of an offer or contract. Intending purchasers should not rely on them as statements of
representation of fact, but must satisfy themselves by inspection or otherwise as to their accuracy. All measurements are approximate. Any details including (but not limited to): lease details, service charges, ground rents & covenant information are provided by the vendor and you should consult with your legal advisor/ satisfy yourself before proceeding. No person in this firms employment has the authority to make or give any representation or warranty in respect of the property.