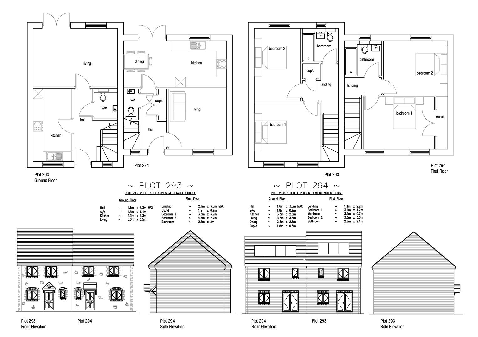
CURTIS FIELDS. Plot 294. The property is a Daffodil house type (new design) comprising of a Two double bedroom semi detached house with part natural stone elevations and parking for two cars side by side in front. Internally there is a contemporary layout on the ground floor with lounge and separate Kitchen dining room offering French Doors on to a full width patio and a contemporary kitchen supplied by Howdens with built in appliances including AEG oven, AEG touch control induction hob, integrated dishwasher and a cooker hood. on the first floor are two double bedrooms with a built in wardrobe in bedroom 1 plus a family bathroom. Located on Curtis Fields. situated approximately 2 miles from Weymouth Town Centre Harbour Area and Esplanade. All properties come with a 10 year NHBC warranty, gas central heating, upvc double glazed windows, and LVT flooring included to the ground floor supplied by Top Mark in Weymouth. Plot 294 is almost ready for completion. N.B. There is a site service charge of £295 per annum. Photos shown maybe of similar plots please check with selling agent as plots can vary
Entrance Hall
Built in double door cupboard
Cloakroom
Fitted with two piece suite comprising WC with concealed cistern, Wash hand basin set in cabinet
Lounge (3.60 x 3.50)
Dining Area (2.80 x 2.80)
French Doors on to full width of house patio and turfed rear garden
Kitchen Area (3.30 x 2.80)
Fitted with contemporary kitchen units supplied by Howdens, Appliances include AEG electric Oven, AEG touch Control Induction Hob, A Cooker Hood and an integrated Dishwasher, there is space for a fridge freezer and washing machine
Landing
Bedroom 1 (4.20 x 3.10)
Plus built in Wardrobe 3.10 x 0.70
Bedroom 2 (3.80 x 3.30)
Bathroom (2.20 x 2.10)
Fitted with three piece suite comprising Panel bath with shower and screen above, WC with concealed cistern, Wash hand basin set in cabinet, towel radiator
Outside
Small Garden area to front, Rear garden has a full width patio with the remainder turfed, Outside Lighting, Power Points & Water Tap
Parking Spaces
Two side by side parking spaces in front of the property
Construction
The property is traditionally built with cavity walls with natural stone and red brick elevations under a pitched roof.
The properties are built to comply with modern building regulations with mobility access
Service Charge
Curtis Fields Management company looks after the communal areas of the site, there is an annual service charge to cover this of £295
LVT Flooring
LVT Flooring included to the ground floor supplied and fitted by Top Mark Carpets in Weymouth
Covenants
A list of the Curtis Fields Covenants is available on request
Utility Supplies
Mains gas, electricity, water and drainage connected, Water supply is metered
Photo Voltaic Roof Panels
There are Photo Voltaic panels to the roof which will belong to the property
Phone and Broadband signal strength and coverage
Mobile phone signals are strong for Vodafone, 3 & O2 average for EE, Internet and broadband not yet connected so not yet assessed
Flood Risk
Awaiting assessment
Legal Disclaimer
These particulars, whilst believed to be accurate are set out as a general outline only for guidance and do not constitute any part of an offer or contract. Intending purchasers should not rely on them as statements of
representation of fact, but must satisfy themselves by inspection or otherwise as to their accuracy. All measurements are approximate. Any details including (but not limited to): lease details, service charges, ground rents & covenant information are provided by the vendor and you should consult with your legal advisor/ satisfy yourself before proceeding. No person in this firms employment has the authority to make or give any representation or warranty in respect of the property.