This Charming three bedroom end of terrace house located in the heart of Weymouth Town Centre, just moments from the Harbour. Full of character, the property features a unique spiral staircase. well- proportioned living space, and a sunny roof terrace- perfect for relaxing. Ideal as a main home or a holiday let in this sought- after coastal location.
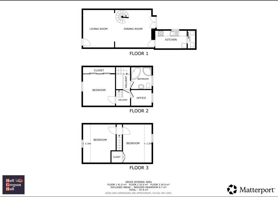
Living/ Dining Room (7.9 x 4.1)
Window to front, large oak fireplace, spiral stair case leading upstairs & patio doors out to the garden and roof terrace.
Kitchen (3.3 x 1.9)
Fitted kitchen comprising of a sink unit set into work tops with a range of drawers and cupboards below fitted dishwasher, four ring gas hob and electric oven, wall mounted cupboards, space for fridge freezer
WC (2.0 x 0.8)
WC and plumbing for washing machine
Bathroom (2.2 x 2.4)
fitted with a corner panelled bath, Walk in Shower cubicle, WC and Wash hand basin
Study (2.2 x 1.6)
Bedroom 1 (3.5 x 3.3)
Fitted wardrobes, window to front
Bedroom 2 (4.1 x 3.1)
Fitted wardrobes
Bedroom 3 (4.1 x 3.6)
Outside
Small patio Yard with stairs leading up to the sunny roof terrace
Parking
No parking with this property but parking permits are available to purchase through Dorset Council.
Council Band
Band C with Dorset Council
Flood Risk
Very low risk from rivers sea or surface water
Construction
Traditionally built with solid walls under a pitched roof
Phone And Broadband Signal strength and Coverage
Mobile phone signals Vodafone, O2, 3 are strong & EE are average
TV, Sky & BT are available Virgin in not available
Broadband estimated standard 18 mbps superfast 80 mbps ultrafast not available
Legal Disclaimer
These particulars, whilst believed to be accurate are set out as a general outline only for guidance and do not constitute any part of an offer or contract. Intending purchasers should not rely on them as statements of
representation of fact, but must satisfy themselves by inspection or otherwise as to their accuracy. All measurements are approximate. Any details including (but not limited to): lease details, service charges, ground rents & covenant information are provided by the vendor and you should consult with your legal advisor/ satisfy yourself before proceeding. No person in this firms employment has the authority to make or give any representation or warranty in respect of the property.