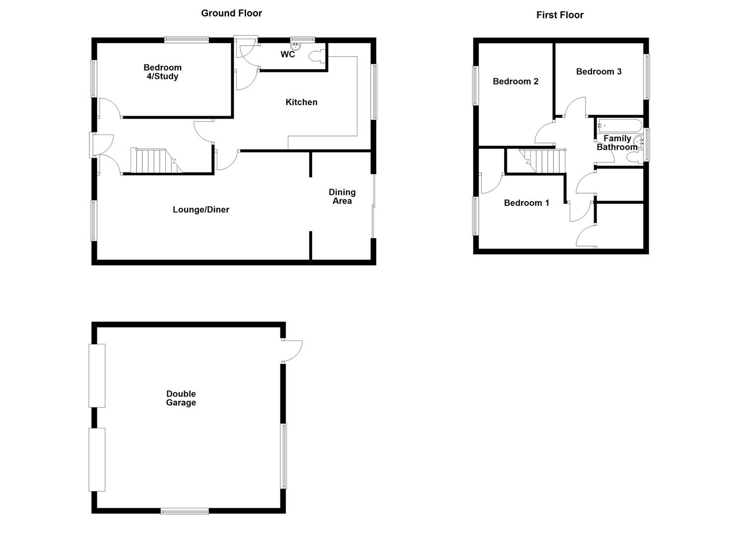
Offered for sale with NO ONWARD CHAIN is this DECEPTIVELY SPACIOUS detached chalet style FAMILY HOME. Boasting GENEROUS ACCOMMODATION throughout, which has been carefully refurbished and modernised by the current vendor. This large family home BENEFITS FROM a open plan LOUNGE/DINER, rear aspect KITCHEN/BREAKFAST ROOM, STUDY/BEDROOM four, THREE BEDROOMS and a MODERN FAMILY BATHROOM. Externally there is AMPLE OFF ROAD PARKING and a LINK-DETACHED DOUBLE GARAGE. This property is in the highly popular residential location of SOUTHWELL and sits on a generous plot of land tucked away within a cul-de-sac.
Entering the property you are greeted by a welcoming entrance hallway, where doors lead to all principal rooms. This spacious family home offers a large open lounge which runs the length of the property and leads into a nice dining area with access out to the garden. Large front and rear aspect windows allow ample amounts of natural light to flood the room. The kitchen/breakfast room offers a selection of eye and base level storage cupboards and space for domestic appliances. The room is sizeable enough to house a family sized table and chairs. From the kitchen/breakfast room is a downstairs WC and a side door providing access to the front and rear of the property. To complete the ground floor accommodation is the front aspect study/bedroom four.
Stairs rise to the first floor where bedrooms one, two, three and the family bathroom are located. Bedroom one sits by itself on the right side of the property and benefits from two built in wardrobes. Bedrooms two & three are small doubles both finished to a high standard. Bedroom three offers rear aspect sea views. The family bathroom is a stylish modern suite with bath tub, WC and wash hand basin.
Externally there is ample off road parking, leading to the link-detached double garage. The double garage is fitted with two single up and over doors, rear aspect door to the low maintenance garden, & a fully boarded loft space.
Lounge (7.62m x 3.95m>3.08m)
Dinning Area (3.89m x 2.11m)
Kitchen/Breakfast Room (5.14m x 3.73m>2.78m)
Bedroom Four / Study (5.00m x 2.73m)
Bedroom One (4.29m x 3.08m)
Bedroom Two (3.52m x 2.82m)
Bedroom Three (3.88m x 2.64m>2.07m)
Bathroom (1.91m x 1.71m)
Double Garage (6.75m x 6.75m)
Additional information
The following details have been provided by the vendor, as required by Trading Standards. These details should be checked by your legal representative for accuracy.
Property type: Detached
Property construction: Standard
Mains Electricity
Mains Water & Sewage: Supplied by Wessex Water
Heating Type: Gas Central Heating
Broadband/Mobile signal/coverage: For further details please see the Ofcom Mobile Signal & Broadband checker.
checker.ofcom.org.uk/
Disclaimer
These particulars, whilst believed to be accurate are set out as a general outline only for guidance and do not constitute any part of an offer or contract. Intending purchasers should not rely on them as statements of
representation of fact, but must satisfy themselves by inspection or otherwise as to their accuracy. All measurements are approximate. Any details including (but not limited to): lease details, service charges, ground rents, property construction, services, & covenant information are provided by the vendor and you should consult with your legal advisor/ satisfy yourself before proceeding. No person in this firms employment has the authority to make or give any representation or warranty in respect of the property.