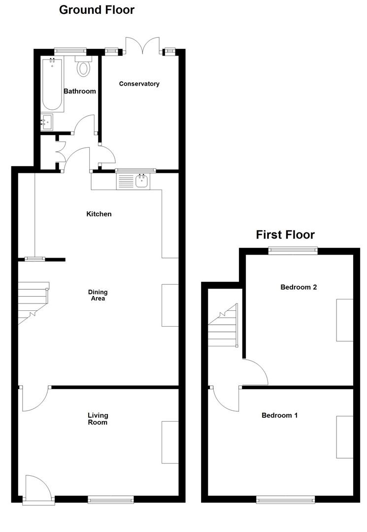
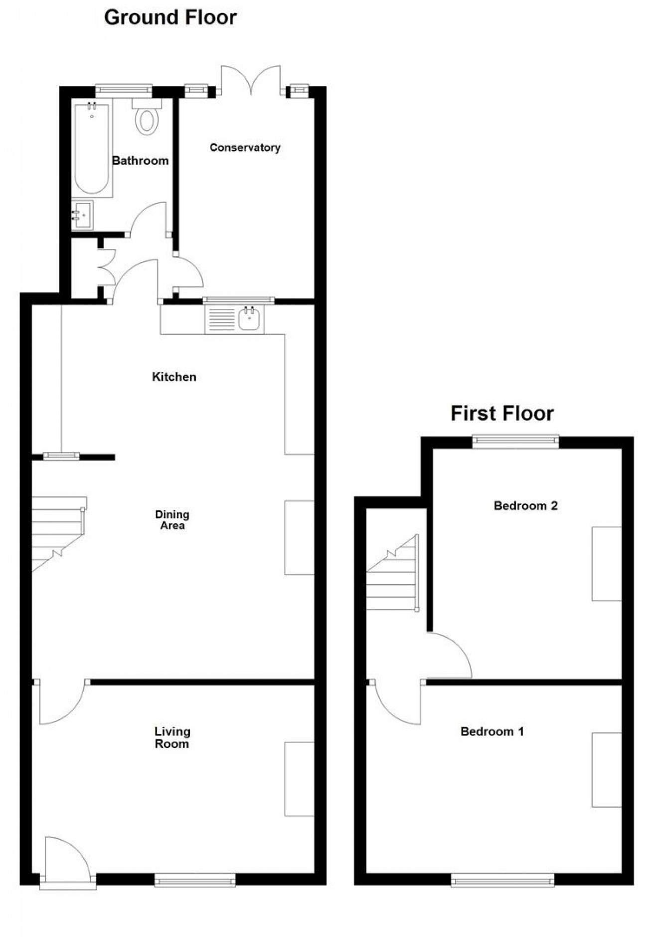
This BEAUTIFULLY PRESENTED TWO-BEDROOM HOME offers a harmonious blend of CHARACTER FEATURES, VERSATILE LAYOUT, and SEAMLESS INDOOR-OUTDOOR FLOW - perfect for MODERN LIFESTYLES. This CHARACTERFUL TWO-BEDROOM HOME combines ORIGINAL FLOORBOARDS, OPEN FIRE, and ORNATE FIREPLACES with a VERSATILE LAYOUT and PRIVATE GARDEN.
Step into a warm and welcoming living room at the front of the house, where natural light pours in through two generous windows. This space is perfect for cozy evenings with a book, weekend movie marathons, or hosting friends for drinks and conversation. The layout invites you to unwind, with ample room for plush seating and personal touches that make a house feel like home
Flowing effortlessly from the living room, the dining area offers a central hub for daily life. Whether you're enjoying a quiet breakfast or hosting a lively dinner party, this space connects beautifully to both the kitchen and living room, making entertaining a breeze.
The kitchen is a practical yet stylish space, with plenty of worktop area and cabinetry to keep everything organized. Positioned at the rear of the house, it offers a lovely view through the conservatory and garden beyond. Imagine cooking with the doors open on a summer’s day, herbs growing on the windowsill, and the scent of fresh coffee drifting through the house.
Step into the conservatory - a sun-drenched haven that invites you to slow down and relax. With double doors leading to the garden, this versatile space can be a tranquil reading nook, a vibrant playroom, or even a home office bathed in natural light. It’s a place where the indoors meet the outdoors, perfect for morning yoga or evening wine as the sun sets.
The principal bedroom is a calming retreat, located at the front of the house. With space for a king-size bed, wardrobes, and a dressing area, it’s a room designed for rest and rejuvenation.
Bedroom Two, positioned at the rear, offers a serene view of the garden and is perfect for guests, children, or as a dedicated workspace. It’s a flexible room that adapts to your lifestyle - whether that’s a creative studio or a cozy nursery.
The garden, accessed via the conservatory’s double doors, is a private slice of nature waiting to be enjoyed. Whether you're cultivating a vegetable patch, hosting summer barbecues, or simply relaxing with a cup of tea, this outdoor space adds a whole new dimension to your lifestyle.
Bedroom One (12 x 11)
Bedroom Two (3.30m x 3.02m)
Conservatory (3.33m x 2.34m)
Bathroom (2.34m x 1.60m)
Kitchen (2.31m x 4.06m)
Dinning Area (4.27m max x 3.35m max)
Lounge (3.61m x 3.51m)
Additional information
The following details have been provided by the vendor, as required by Trading Standards. These details should be checked by your legal representative for accuracy.
Property type: Mid Terrace
Property construction: Standard
Tenure: Freehold
Mains Electricity
Mains Water & Sewage: Supplied by Wessex Water
Heating Type: Gas
Broadband/Mobile signal/coverage: For further details please see the Ofcom Mobile Signal & Broadband checker.
checker.ofcom.org.uk/
Disclaimer
These particulars, whilst believed to be accurate are set out as a general outline only for guidance and do not constitute any part of an offer or contract. Intending purchasers should not rely on them as statements of
representation of fact, but must satisfy themselves by inspection or otherwise as to their accuracy. All measurements are approximate. Any details including (but not limited to): lease details, service charges, ground rents, property construction, services, & covenant information are provided by the vendor and you should consult with your legal advisor/ satisfy yourself before proceeding. No person in this firms employment has the authority to make or give any representation or warranty in respect of the property.