CURTIS FIELDS. Plot 401. The property is a IRIS house type , example 3D Tour is available. Comprising of a Two double bedroom terraced house with an West Facing rear garden. Internally there is a lounge with French Doors opening onto a full width patio and the rear garden, a contemporary kitchen with modern fitted kitchen supplied by Kitchen Craft with built in appliances including double oven, 4 ring gas hob and integrated dish washer plus. On the first floor are two bedrooms plus a family bathroom, virtual tour available (plots may vary). All properties come with a 10 year NHBC warranty, gas central heating, UPVC double glazed windows, and Carpets & LVT flooring are included supplied by Top Mark in Weymouth. Plot 401 is ready for occupation. N.B. There is a site service charge of £295 per annum. Photos shown are of a similar property.
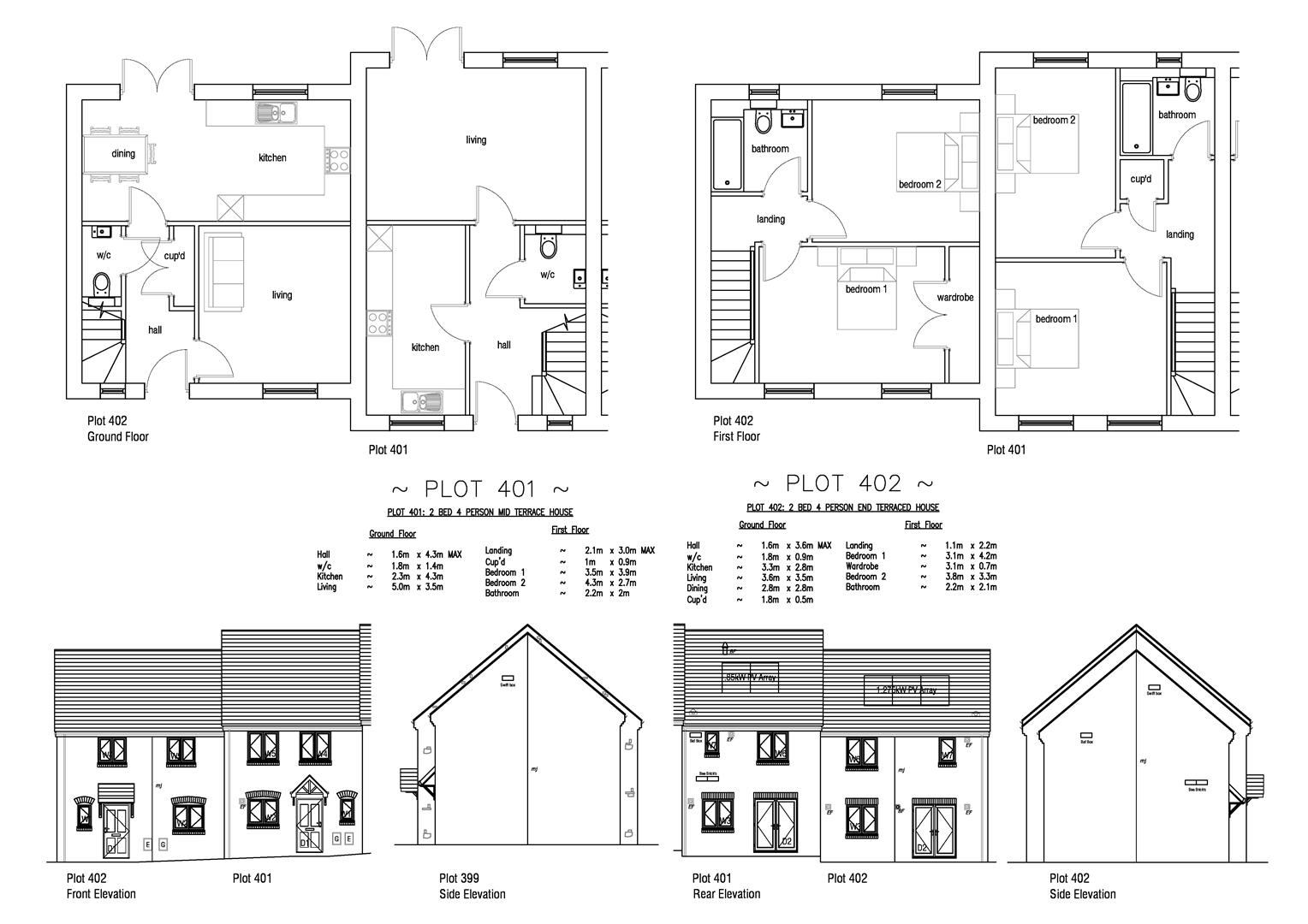
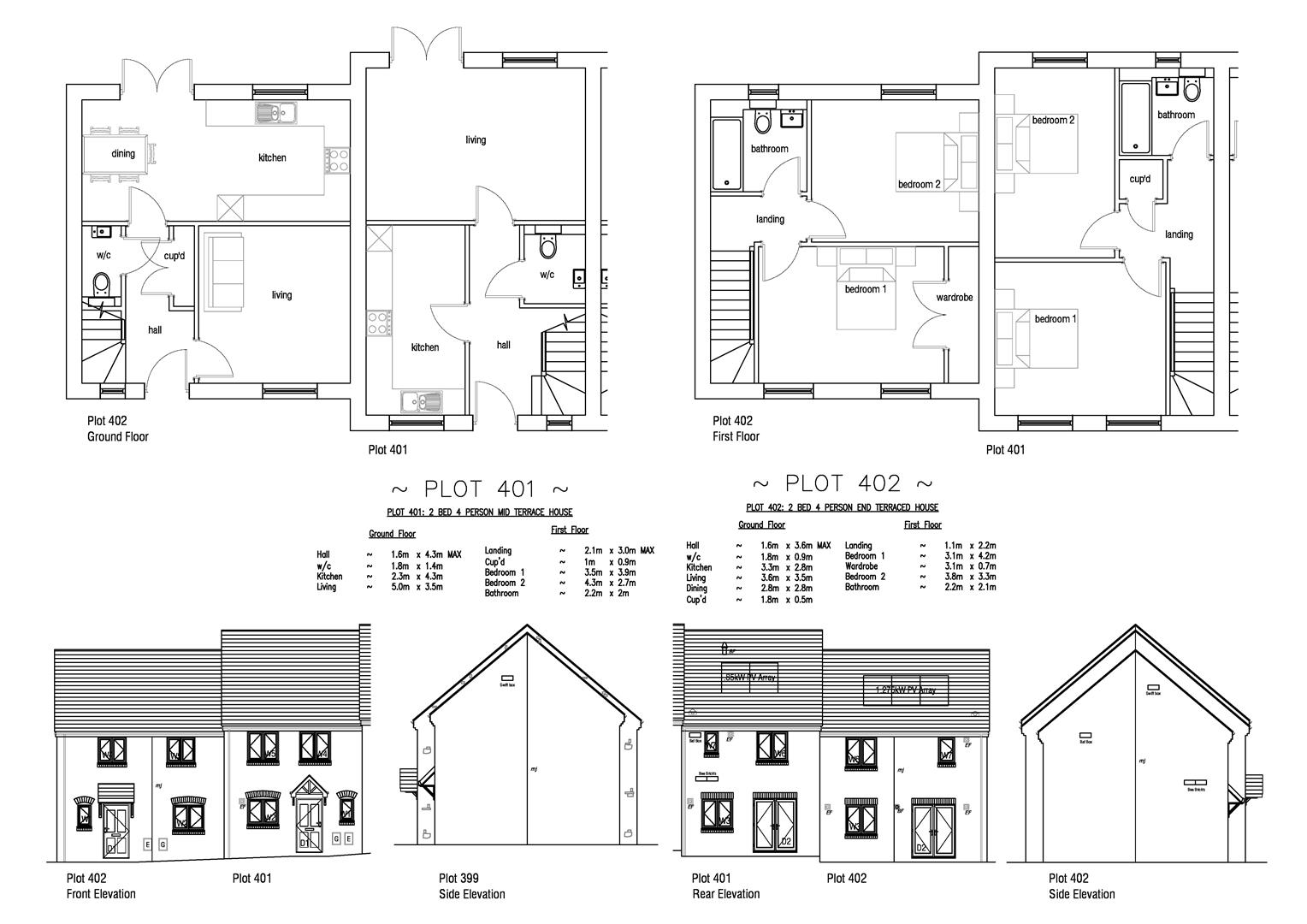
Entrance Hall
Cloakroom (1.80 x 1.40)
Wash hand basin set in to cabinet, WC with concealed cistern
Lounge (5.00 x 3.50)
French doors to West Facing patio and rear garden
Kitchen (4.30 x 2.30)
Contemporary range of kitchen units with appliances including 4 ring gas hob, cooker hood, double oven, integrated dish washer, + Plumbing for washing machine and space for Fridge freezer
Landing
Airing Cupboard housing gas boiler
Bedroom 1 (3.50 x 3.90)
Bedroom 2 (4.30 x 2.70)
Bathroom (2.20 x 2.00)
White suite with panel bath with shower and screen above, wash hand basin set in to cabinet, wc with concealed cistern, towel radiator
Outside
Small garden to front plus Enclosed west facing rear garden with patio across the house with the remainder to turf and with fenced surround, there will be outside lighting. a water tap and power points
Car Parking
Two tandem Parking spaces close by
Construction
The property is traditionally built with cavity walls with a rendered elevations under a pitched roof.
The properties are built to comply with modern building regulations with mobility access
Service Charge
Site service service charge of £295 managed by Curtis Fields Management Company
Council Tax
To be assessed
Covenants
A list of the Curtis Fields Covenants is available on request
Photo Voltaic Roof Panels
There are Photo Voltaic panels to the roof which will belong to the property
Utility Supplies
Mains gas, electricity, water and drainage connected, Water supply is metered
Phone and Broadband signal strength and coverage
Mobile phone signals are strong for Vodafone, 3 & O2 average for EE, Internet and broadband not yet connected so not yet assessed
Flood Risk
No Low Risk of flooding from rivers or sea Medium Risk from surface water
Legal Disclaimer
These particulars, whilst believed to be accurate are set out as a general outline only for guidance and do not constitute any part of an offer or contract. Intending purchasers should not rely on them as statements of
representation of fact, but must satisfy themselves by inspection or otherwise as to their accuracy. All measurements are approximate. Any details including (but not limited to): lease details, service charges, ground rents & covenant information are provided by the vendor and you should consult with your legal advisor/ satisfy yourself before proceeding. No person in this firms employment has the authority to make or give any representation or warranty in respect of the property.