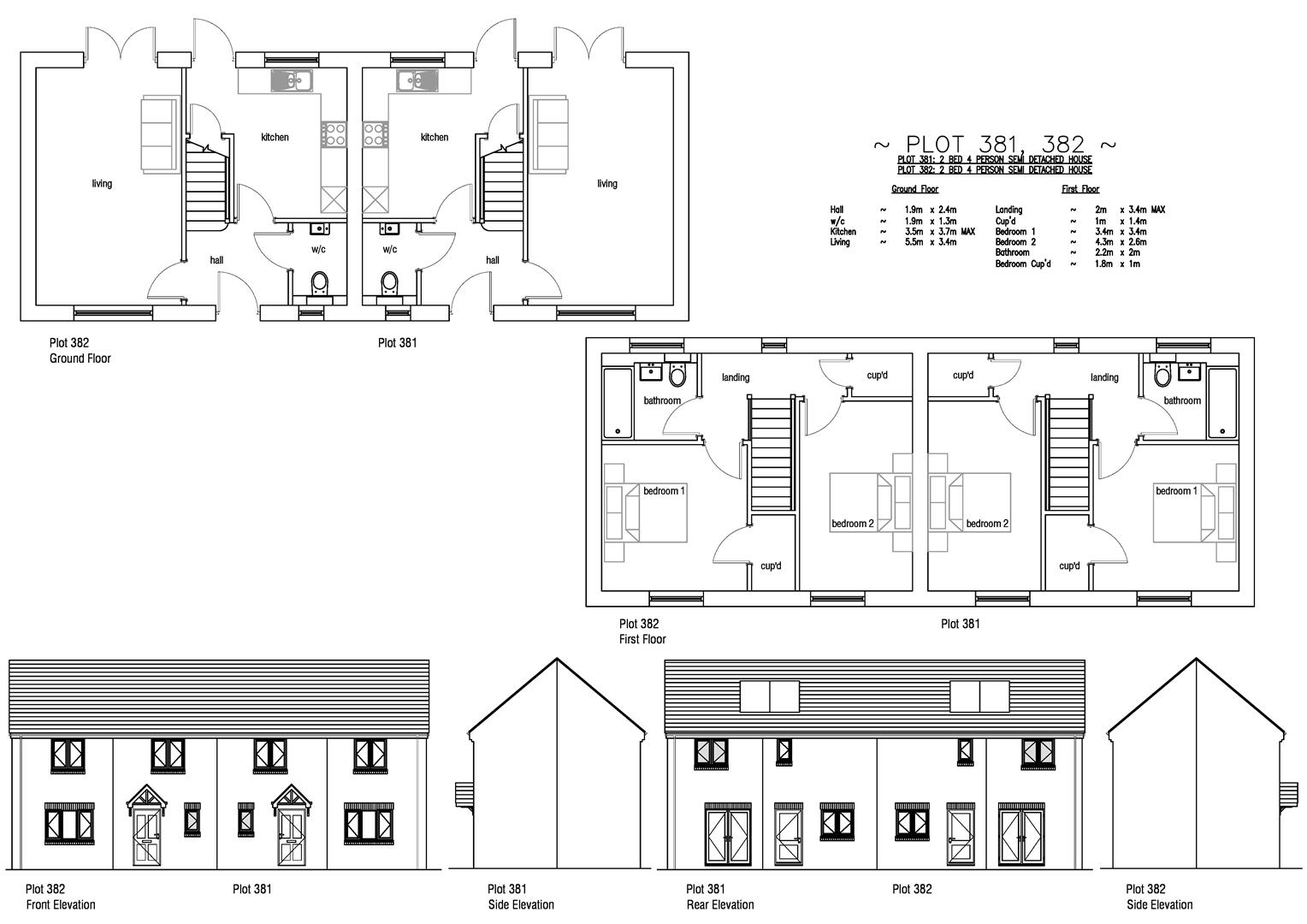
CURTIS FIELDS. Plot 382 . The property is a semi detached Snowdrop house type 3 D VIRTUAL TOUR AVAILABLE comprising of a Two double bedroom house with a south facing rear garden and two side by side parking spaces in front. Internally there is an ample lounge with French Doors on to a full width patio and a contemporary kitchen fitted with kitchen supplied by Kitchen Craft with built in appliances including double oven, hob, integrated dish washer. on the first floor are two double bedrooms plus a family bathroom. Located on Curtis Fields a sought after development situated approximately two miles from Weymouth Town Centre Harbourside and Esplanade. Properties come with a 10 year NHBC warranty, photo voltaic roof panels, gas central heating, upvc double glazed windows, and Carpets & LVT flooring included supplied by Top Mark in Weymouth. Plot 382 is ready for completion. N.B. There is a site service charge of £295 per annum. N.B. photos used are of a similar property
Entrance Hall (1.90 x 2.40)
Cloakroom (1.90 x 1.30)
Fitted with two piece suite comprising WC with concealed cistern, Wash hand basin set in cabinet
Lounge (5.50 x 3.40)
Double aspect room with French Doors on to south facing full width of house patio
Kitchen Breakfast Room (3.70 x 3.50)
Fitted with contemporary kitchen units, Appliances include Double Oven, Hob, Cooker Hood and integrated Dish Washer, there is space for a fridge freezer a washing machine. Door to under stairs storage cupboard and door to rear garden
Landing
Cupboard
Bedroom 1 (3.40 x 3.40)
Built in cupboard
Bedroom 2 (4.30 x 2.60)
Bathroom (2.20 x 2.00)
Fitted with three piece suite comprising Panel bath with shower and screen above, WC with concealed cistern, Wash hand basin set in cabinet, towel radiator
Outside
Small garden to the front. Enclosed South facing Garden to rear, which has a full width patio with the remainder turfed, Outside Lighting, Power Points & Water Tap
Parking
Two side by parking spaces in front
Construction
The property is traditionally built with cavity walls with a rendered exterior under a pitched roof.
The properties are built to comply with modern building regulations with mobility access
Service Charge
Curtis Fields Management company looks after the communal areas of the site, there is an annual service charge to cover this of £295
Council Tax
To be assessed
Covenants
A list of the Curtis fields Covenants is available on request
Photo Voltaic Roof Panels
There are Photo Voltaic panels to the roof which will belong to the property
Utility Supplies
Mains gas, electricity, water and drainage connected, Water supply is metered
Phone and Broadband signal strength and coverage
Mobile phone signals are strong for Vodafone, 3 & O2 average for EE, Internet and broadband not yet connected so not yet assessed
Flood Risk
No Low Risk of flooding from rivers or sea Medium Risk from surface water
Legal Disclaimer
These particulars, whilst believed to be accurate are set out as a general outline only for guidance and do not constitute any part of an offer or contract. Intending purchasers should not rely on them as statements of
representation of fact, but must satisfy themselves by inspection or otherwise as to their accuracy. All measurements are approximate. Any details including (but not limited to): lease details, service charges, ground rents & covenant information are provided by the vendor and you should consult with your legal advisor/ satisfy yourself before proceeding. No person in this firms employment has the authority to make or give any representation or warranty in respect of the property.